CE.40 SP RPT (108-115) (Serie 3800)
Serie 3800 CE40 SP RPT: Innovación en sistemas de corredera elevable de alta gama.
La Serie 3800 CE40 SP RPT representa un avance en el diseño de corredera elevable de rotura térmica, destacándose por su versatilidad, estética refinada y alto rendimiento técnico. Diseñada para satisfacer las necesidades de los proyectos más exigentes, esta serie ofrece:
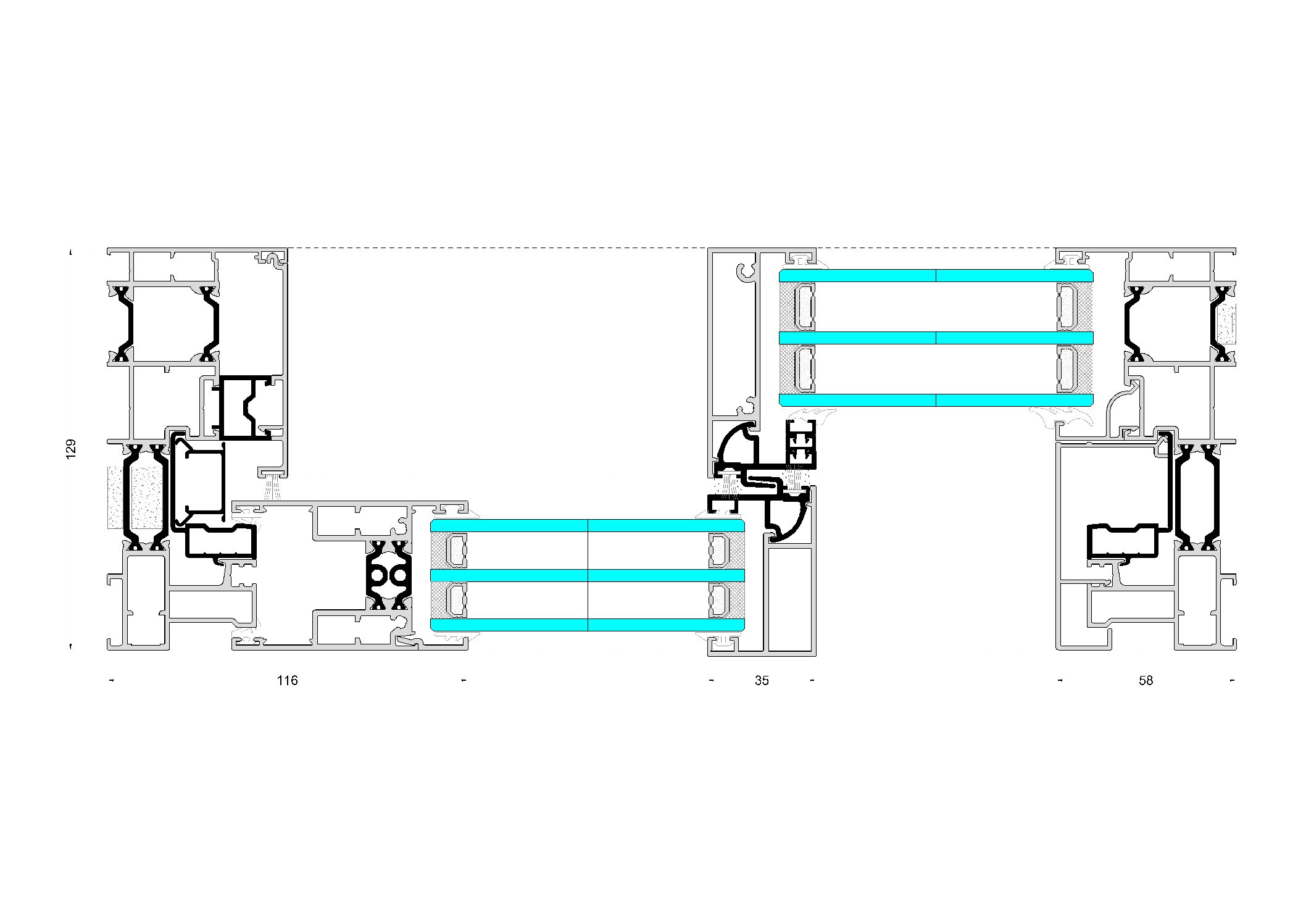
- Dimensiones del cerco: Disponible en opciones de profundidad perimetral de 108 mm o 115 mm, adaptándose a diversas configuraciones arquitectónicas.
- Capacidad de acristalamiento: El diseño permite la integración de vidrios de hasta 40 mm de espesor, asegurando un excelente aislamiento térmico y acústico.
- Diseño de hojas: Incorporación de hojas semiperimetrales con un cruce optimizado, que presenta un frente visto de tan solo 35 mm, maximizando la entrada de luz y ofreciendo un acabado moderno y minimalista.
- Sistemas de estanqueidad: Según las preferencias del instalador, la estanqueidad puede resolverse mediante juntas y cepillos, garantizando un rendimiento superior frente a las condiciones climáticas más adversas.
Esta solución combina funcionalidad, eficiencia y estética, consolidándose como una opción de referencia para proyectos de alta gama que requieren la máxima calidad en sistemas de cerramiento.
Valores de ensayo
Transmitancia (según CTE)
UH = hasta 0,9 (W/m2K).
Transmitancia térmica para balconera de 2 hojas con vidrio de doble cámara con argón y bajo emisivo
Válida para todas las zonas climáticas*: α, A, B, C, D, E
*En función de la transmitancia del vidrio
Aislamiento acústico (según vidrio)
Reducción nivel acústico Rw = 30 (-1;-4) dB*
(*) Para un vidrio 4/10/3+3 según norma EN 14351-1:2006+A1:2010
(**) Puede mejorarse dicho valor en función del vidrio considerado
Permeabilidad al aire: Clase 3.
Estanqueidad al agua: Clase 7A.
Resistencia al viento: Clase C5.
C.40 SP RPT (108-115) (Serie 3800)
Parámetros generales
Secciones
Archivos disponibles
Acabados disponibles
PRODUCTOS RELACIONADOS
La solución que mejor se adapte a tus necesidades
Los comentarios están cerrados.

